Your 1st Choice for a New Home!
Home
About First Choice Homes
Model Homes
Floor Plans
Sales/Contact
800 E. New Bern Road
,
28501
Kinston
+1 252-523-3680
firstchoicehomes@yahoo.com
Back to model homes
next model home>
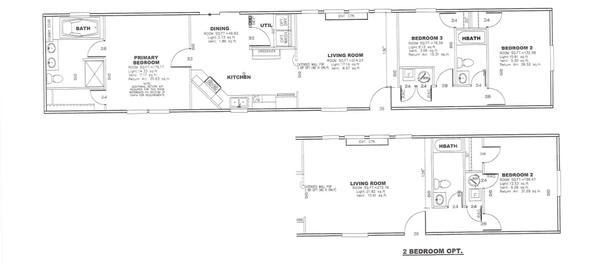
Ultra A Plus 16 x 76
Singlewide 16 x 76
3 BR 2 BA
Clayton Oxford
CALL FOR BEST PRICE!
Floor Plan
Photos
Virtual Tour